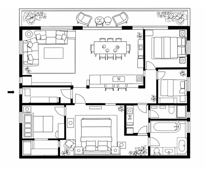
平面设计图(130平方米)

款热带东南亚混搭风洋房,以「自然度假、松弛栖居」为核心,融合原生材质与暖调肌理,打造沉浸式

度假感居家空间。整体布局通透开阔,客餐厨一体的开放式公区串联全屋,衔接观景阳台引景入室。

三室双卫配置兼顾多代居住需求,主卧套间带独立卫浴与衣帽间,保障私密与舒适。

餐厨分区清晰,兼顾日常烹饪与聚会场景,实现度假氛围与实用生活的平衡。

玄关效果图

换鞋凳 + 收纳柜 + 装饰台形成连贯入户动线,满足换鞋、收纳、整理的核心需求。

耐脏的微水泥墙面与防滑瓷砖适配玄关高频使用属性,且与户外木质平台自然过渡。

藤编、原木与绿植搭配,打造温润质朴的归家氛围,消解入户疲惫。

圆形藤编镜打破墙面单调,多材质肌理碰撞,让简约空间兼具层次与质感。

客厅效果图

L 型沙发 + 藤编椅的组合,既满足多人社交需求,又通过开放式布局,让客厅与户外景观无缝衔接,提升空间通透感。

天然石材墙面与实木家具搭配,既保证了客厅的耐用性,又能与户外绿植形成自然呼应,适配热带 / 东南亚风格的居住环境。

藤编吊灯、棉麻沙发与绿植的组合,打造出温暖质朴的度假风氛围,缓解日常压力,提升居住舒适度。

大地色石材、原木色家具与彩色抱枕形成对比,搭配复古花纹地毯,让空间在简约中兼具细节与质感。

餐厨效果图

餐厨一体布局,备餐、用餐、收纳动线短而高效,岛台设计兼顾操作与互动。

实木与藤编家具耐候性强,微水泥墙面和瓷砖易清洁,适配高频使用场景。

藤编吊灯、原木家具与窗外绿植呼应,营造温暖质朴的度假风氛围。

木梁吊顶、开放式置物架与绿植点缀,让空间在简约中兼具细节与质感。

主卧效果图

床居中摆放,两侧预留充足动线,藤编休闲椅与床头柜形成放松角落,兼顾睡眠与休憩功能。

实木地板与藤编家具触感温润,微水泥墙面隔音耐脏,适配卧室静谧、高频使用的属性。

藤编吊灯、棉麻床品与绿植搭配,营造温暖质朴的度假风氛围,助于舒缓情绪、提升睡眠质量。

木质框架、编织床头与复古地毯形成肌理对比,色彩柔和统一,让空间简约而有质感。

主卫效果图

独立玻璃淋浴房与浴缸、马桶区明确分隔,有效避免水汽蔓延,提升使用安全与清洁效率。

洗漱台居中,浴缸、马桶、淋浴依次排布,动线流畅,同时预留了绿植与收纳空间,兼顾实用与美观。

天然石材纹理、藤编收纳与绿植点缀,营造出温润质朴的度假风氛围,缓解日常压力。

石材墙面、木质柜面与金属五金形成肌理对比,暖光壁灯提升空间温度,简约而富有细节。

衣帽间效果图

 挂衣区、抽屉、开放式格架分区明确,适配衣物、配饰、箱包等不同物品,存取动线清晰。

整合了梳妆区、全身镜与换衣凳,满足更衣、化妆、整理等多重需求,空间利用率高。

实木柜体、藤编收纳与绿植点缀,延续了整体度假风质感,让收纳空间兼具温度与美感。

嵌入式灯带、复古藤编镜与天然材质肌理碰撞,在实用基础上提升了空间精致度。

次卧效果图

床居中摆放,两侧预留充足动线,藤编休闲椅与床头柜形成放松角落,兼顾睡眠与休憩功能。

实木地板与藤编家具触感温润,微水泥墙面隔音耐脏,适配卧室静谧、高频使用的属性。

藤编吊灯、棉麻床品与绿植搭配,营造温暖质朴的度假风氛围,助于舒缓情绪、提升睡眠质量。

木质框架、编织床头与藤编装饰形成肌理对比,色彩柔和统一,让空间简约而有质感。

次卫效果图

独立玻璃淋浴房与洗漱区、马桶区明确分隔,有效避免水汽蔓延,提升使用安全与清洁效率。

洗漱台、马桶、淋浴依次排布,动线流畅,同时利用开放格与藤编篮提升收纳,兼顾实用与美观。

天然石材纹理、藤编镜与绿植点缀,营造出温润质朴的度假风氛围,缓解日常压力。

石材墙面、木质柜面与藤编元素形成肌理对比,暖光壁灯提升空间温度,简约而富有细节。

书房效果图

书桌与书架一体化设计,形成完整的工作学习区,靠窗位置保证充足自然采光,提升专注度。

开放式格架与封闭抽屉分区明确,适配书籍、文具、摆件等物品,存取动线清晰,空间利用率高。

藤编吊灯、实木家具与绿植搭配,营造温暖质朴的氛围,缓解工作学习的疲惫感。

木质柜体、藤编元素与微水泥墙面形成肌理对比,色彩柔和统一,让空间简约而有质感。

阳台效果图

藤编休闲椅 + 小圆桌的组合,适配阳台尺度,满足休憩、品茶需求,动线流畅无拥挤感。

大面积落地窗引入自然采光,朝向开阔绿植景观,最大化观景与采光体验,契合阳台休闲属性。

藤编灯具、木质地板与热带绿植搭配,暖光与黄昏自然光交融,营造出松弛治愈的度假感。

藤编、实木、亚麻等自然材质贯穿,色调温暖和谐,风格质朴高级,与户外绿植景观形成呼应。

热带东南亚混搭风洋房设计|自然度假氛围・全功能生活布局

装修为什么选择 WayMorn 平台

装修一套房子,动辄投入十几万甚至上百万,这可能是普通家庭最大的一笔消费。然而,装修行业信息极不对称,很多业主直到入住后才发现各种问题。

装修不需要靠运气,需要靠制度。WayMorn 平台通过一套严谨的服务体系,以及“房屋检测+装修监理+商务监督”三重保障体系,帮您把控风险,让您装修无烦恼。

 

1. 独立的第三方人员

WayMorn平台首创的“房屋检测+装修监理+商务监督”三重保障体系,配备了签约房屋检测师、装修监理和商务监督员。这些人不属于装修公司,他们的职责就是代表您去监督装修公司。

 

2. 选择合格的装修公司

与WayMorn签约的装修公司有很多,每一家装修公司都是经过严格审核,并实地考察认证后才挑选出来的。在您准备装修时,平台提供三家及以上的装修公司供您选择,直到您满意为止。

如果您选择的是其他装修公司,WayMorn的“房屋检测+装修监理+商务监督”三重保障体系依然可以为您提供服务。

 

3. 商务审核帮您节省资金

不要只看装修总价,要看每一个施工项目的单价、面积、工艺描述和材料品牌规格,要看看有没有漏项缺项。

某些装修公司在初期报价时,经常会漏掉很多必不可少的项目,总价看起来很便宜。等您签了合同开始施工后,就会被要求追加资金,这时候您已经停不下来,只能增加预算。

我们的商务监督员会帮您审核装修报价,剔除不合理的收费项,确保每一分钱都花在实处;核查装修中每一个必不可少的项目,避免装修公司后期加价、追加装修项目等常见的问题。

 

4. 装修前检测房屋安全问题

我们的房屋检测师会在您装修设计前,检测房屋安全问题,告诉您哪些地方可以拆哪些地方不能拆,以及其他工程安全事项,在设计与施工前就有效规避风险,保障您和您的家人入住后的人身安全。

 

5. 装修材料的选择认证

装修一套房子会用到的材料种类很多品牌很多,各类品牌质量差异巨大,价格也差异巨大,仅仅看外表或者上网搜索某个品牌的装修材料情况,非专业人士很难辨别品牌真伪或质量好坏。

比如一块劣质瓷砖看起来很好,价格也低,但用一年后就会变色。而电线、水管、防水涂料这些埋在墙里的材料,一旦使用了劣质的,可能出现电路起火、水管爆裂等问题。而后期维修费用非常高,最关键的是新补的材料和原先的不可能完全一样,会影响全屋的整体美观。

因此,我们的专业人员会帮您把关,确保材料货真价实,从源头杜绝质量隐患。

 

6. 施工全过程节点管理

装修工艺标准不透明,会产生很多问题。很多施工员为了赶进度,不按标准工序操作。比如,同样的瓷砖,铺贴工艺不同,寿命完全不同,空鼓、开裂、墙面不平整等问题在交房时很难察觉,在入住一两年后问题才会出现,为时已晚,只能忍受。

我们的装修监理人将实施全过程节点管理,在每一道工序完成后(尤其是水电、防水),验收合格才进行下一道工序,保障施工质量。

 

7. 竣工后验收

装修工程全部结束后,并不意味着大功告成,可能还会有一些质量问题。

WayMorn 平台将会组织联合验收小组,对您的房屋从安全到质量进行全方位检查验收,发现问题,及时整改,直到全部合格。

 

装修是一件专业且复杂的大事,与其在开工后因为各种增项和质量问题去争吵,不如在开始前就选择一个专业的装修平台。

如果您正准备装修,欢迎联系 WayMorn,为您提供专业、透明、省心的全管家式装修服务,让您的装修结果真正符合预期。

×