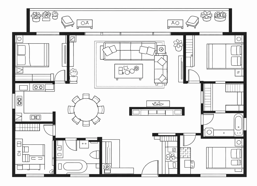
平面设计图(120平方米)

本款轻新中式风洋房设计,以「雅致意境,温润栖居」为核心,融合东方人文底蕴与现代舒适质感,

打造兼具禅意与烟火气的居住空间。整体布局清晰通透,以客餐厅为核心打造互动公区,

搭配阔景阳台,引景入室。多卧室 + 书房 + 双卫的配置,兼顾家庭与待客需求,

主卧套间独立私密,满足品质生活体验,实现东方美学与实用功能的平衡。

玄关效果图

鞋柜、换鞋凳、收纳柜依次排布,形成完整的入户动线,提升使用效率。

高柜与矮柜结合,兼顾了鞋子、衣物、杂物等多类物品的收纳需求,保持空间整洁。

浅木色与暖白墙面搭配,辅以柔和灯光,营造出自然、治愈的家居氛围。

换鞋凳与开放格设计,兼顾了换鞋的便利性与随手置物的实用性,提升入户体验。

客厅效果图

L 型沙发与茶几、电视墙形成清晰的会客区,兼顾休闲与交流需求。

利用木质格栅与长凳划分出过渡区,既保证空间通透,又丰富了层次。

浅木色家具搭配柔和灯光,辅以绿植点缀,营造出自然治愈的日式氛围。

双层窗帘兼顾采光与隐私,色彩丰富的抱枕提升了视觉活力与坐感舒适度。

餐厅效果图

木质格栅装饰门窗既保留了中式美学的含蓄雅致,又能让光线柔和渗透,避免了实墙带来的压抑感。

侧边餐边柜兼具收纳与展示功能,可放置餐具与摆件,保持空间整洁。

浅木色家具与水墨挂画呼应,搭配中式格栅门窗,营造出温润雅致的东方韵味。

吊灯与筒灯组合提供柔和照明,大窗引入自然光,提升空间通透感与用餐体验。

厨房效果图

 U 型橱柜布局形成洗、切、炒、储的黄金操作三角,提升烹饪效率。

上下柜结合设计,最大化利用垂直空间,满足厨具与食材的收纳需求。

吊柜下的灯带与主灯搭配,消除操作阴影,提升烹饪时的视觉舒适度。

浅木色橱柜与浅灰瓷砖搭配,营造出温馨自然的日式厨房氛围。

主卧效果图

 床、床头柜、衣柜分区清晰,从睡眠到收纳的动线自然高效。

大衣柜与床头柜抽屉结合,满足衣物、杂物收纳需求,保持空间整洁。

浅木色家具与暖光灯具搭配,营造出温润、治愈的睡眠氛围。

床头软包与床尾凳设计,兼顾倚靠舒适度与睡前置物便利性。

衣帽间效果图

 一侧为梳妆区,另一侧为大容量衣柜,功能互不干扰,动线流畅。

玻璃柜门与抽屉结合,兼顾展示与收纳,衣物、配饰分类存放一目了然。

浅木色与暖光灯带搭配,营造出温馨、整洁的更衣环境。

全身镜与换衣凳设计,方便试衣与整理,提升日常使用体验。

主卫效果图

玻璃淋浴房独立分隔,干区(台盆 / 马桶 / 浴缸)与湿区完全分离,防潮防霉,动线清晰。

大窗引入自然光,搭配无主灯设计,保证明亮通透,避免卫浴空间潮湿昏暗。

原木 + 石材 + 金属元素,打造新中式禅意卫浴,温润高级,兼具东方意境与现代舒适。

镜柜收纳、壁龛储物、绿植点缀,兼顾实用性与氛围感,营造静谧放松的沐浴空间。

次卧效果图

 整墙衣柜 + 对称床头柜,收纳与睡眠动线流畅,空间利用率高,满足储物与休憩需求。

大窗引入自然光,搭配筒灯 + 床头台灯,层次丰富,营造柔和舒适的睡眠氛围。

原木 + 山水壁画 + 格栅,打造新中式禅意卧室,沉稳治愈,凸显东方意境。

低饱和配色 + 自然材质,营造静谧放松的睡眠环境,兼顾美观与实用。

公卫效果图

玻璃淋浴房独立分隔,干区(台盆 / 马桶 / 浴缸)动线清晰,防潮防霉,功能互不干扰。

转角大窗引入充足自然光,无主灯 + 灯带设计,保证明亮通透,避免卫浴潮湿昏暗。

原木格栅 + 石材 + 金属五金,打造新中式禅意卫浴,温润高级,兼具东方意境与现代舒适。

双台盆设计、镜柜收纳、壁龛储物,兼顾实用性与氛围感,营造静谧放松的沐浴空间。

书房效果图

 左侧整面书柜与中央书桌形成高效工作区,右侧矮柜兼具收纳与展示,动线流畅。

开放式格架与封闭式柜门结合,兼顾书籍、摆件与杂物的分类收纳,保持整洁。

浅木色家具与水墨挂画呼应,搭配绿植点缀,营造出温润雅致的东方书房氛围。

桌面台灯与筒灯组合,提供柔和专注的照明,提升长时间工作的舒适度。

阳台装修效果图

以茶桌为中心,两侧对称布置座椅,形成舒适的对坐交流区,动线流畅。

利用阳台采光优势,将休闲区与自然景观结合,提升空间利用率。

浅木色家具与中式挂画、绿植呼应,营造出禅意悠然的东方休闲氛围。

壁灯与自然光搭配,提供柔和照明,大面积落地窗引入绿意,放松身心。

轻新中式风洋房设计|雅致意境氛围・全维实用布局

装修为什么选择 WayMorn 平台

装修一套房子,动辄投入十几万甚至上百万,这可能是普通家庭最大的一笔消费。然而,装修行业信息极不对称,很多业主直到入住后才发现各种问题。

装修不需要靠运气,需要靠制度。WayMorn 平台通过一套严谨的服务体系,以及“房屋检测+装修监理+商务监督”三重保障体系,帮您把控风险,让您装修无烦恼。

 

1. 独立的第三方人员

WayMorn平台首创的“房屋检测+装修监理+商务监督”三重保障体系,配备了签约房屋检测师、装修监理和商务监督员。这些人不属于装修公司,他们的职责就是代表您去监督装修公司。

 

2. 选择合格的装修公司

与WayMorn签约的装修公司有很多,每一家装修公司都是经过严格审核,并实地考察认证后才挑选出来的。在您准备装修时,平台提供三家及以上的装修公司供您选择,直到您满意为止。

如果您选择的是其他装修公司,WayMorn的“房屋检测+装修监理+商务监督”三重保障体系依然可以为您提供服务。

 

3. 商务审核帮您节省资金

不要只看装修总价,要看每一个施工项目的单价、面积、工艺描述和材料品牌规格,要看看有没有漏项缺项。

某些装修公司在初期报价时,经常会漏掉很多必不可少的项目,总价看起来很便宜。等您签了合同开始施工后,就会被要求追加资金,这时候您已经停不下来,只能增加预算。

我们的商务监督员会帮您审核装修报价,剔除不合理的收费项,确保每一分钱都花在实处;核查装修中每一个必不可少的项目,避免装修公司后期加价、追加装修项目等常见的问题。

 

4. 装修前检测房屋安全问题

我们的房屋检测师会在您装修设计前,检测房屋安全问题,告诉您哪些地方可以拆哪些地方不能拆,以及其他工程安全事项,在设计与施工前就有效规避风险,保障您和您的家人入住后的人身安全。

 

5. 装修材料的选择认证

装修一套房子会用到的材料种类很多品牌很多,各类品牌质量差异巨大,价格也差异巨大,仅仅看外表或者上网搜索某个品牌的装修材料情况,非专业人士很难辨别品牌真伪或质量好坏。

比如一块劣质瓷砖看起来很好,价格也低,但用一年后就会变色。而电线、水管、防水涂料这些埋在墙里的材料,一旦使用了劣质的,可能出现电路起火、水管爆裂等问题。而后期维修费用非常高,最关键的是新补的材料和原先的不可能完全一样,会影响全屋的整体美观。

因此,我们的专业人员会帮您把关,确保材料货真价实,从源头杜绝质量隐患。

 

6. 施工全过程节点管理

装修工艺标准不透明,会产生很多问题。很多施工员为了赶进度,不按标准工序操作。比如,同样的瓷砖,铺贴工艺不同,寿命完全不同,空鼓、开裂、墙面不平整等问题在交房时很难察觉,在入住一两年后问题才会出现,为时已晚,只能忍受。

我们的装修监理人将实施全过程节点管理,在每一道工序完成后(尤其是水电、防水),验收合格才进行下一道工序,保障施工质量。

 

7. 竣工后验收

装修工程全部结束后,并不意味着大功告成,可能还会有一些质量问题。

WayMorn 平台将会组织联合验收小组,对您的房屋从安全到质量进行全方位检查验收,发现问题,及时整改,直到全部合格。

 

装修是一件专业且复杂的大事,与其在开工后因为各种增项和质量问题去争吵,不如在开始前就选择一个专业的装修平台。

如果您正准备装修,欢迎联系 WayMorn,为您提供专业、透明、省心的全管家式装修服务,让您的装修结果真正符合预期。

×