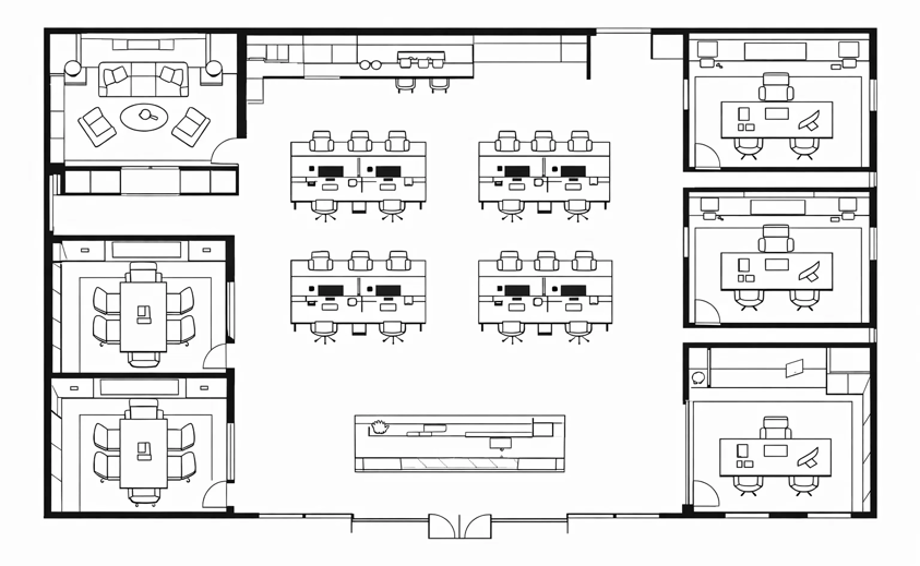
平面设计图(250平方米)

本款现代轻奢风咨询公司办公设计,以「高效专业、质感商务」为核心,融合大理石质感与沉稳色调,

打造精致大气的办公空间。整体布局清晰,合理划分开放工位区、独立办公室、会议室及接待区,

兼顾协作沟通与私密办公。以中央开放区与前台为核心串联空间,优化动线提升流转效率,

大面积工位搭配独立洽谈室,满足多元办公需求,实现美学与实用价值的平衡。

前台效果图

 前台、通道动线分离,避免人流交叉干扰,提升秩序感。

大面积落地窗引入自然采光,弱化室内外边界,既节能又能缓解空间压抑感,符合现代办公健康需求。

天然大理石与暖棕石材搭配,辅以金属线条点缀,营造稳重、专业的商务氛围,提升空间品质感。

嵌入式筒灯提供基础照明,背景墙暗藏灯带与局部台灯营造温馨氛围,兼顾功能性与氛围感。

开放式工作区效果图

中央预留宽敞通行通道,工位对称排布,员工通行、协作互不干扰,符合办公空间的功能需求。

整面落地窗引入充足自然光,搭配线性顶灯补光,兼顾采光与照明,适配高层办公场景。

黑框玻璃隔断分隔空间,既保证独立办公区隐私,又不阻断视线,空间开阔不压抑。

浅灰墙面、大理石地面搭配极简家具,线条利落,视觉整洁大气,适配现代企业形象。

总裁办公室效果图

办公区、储物区与会客区互不干扰,整面书架兼具展示与收纳功能,满足高效办公需求。

两侧玻璃隔断既保证空间通透感,又能通过材质实现办公隐私,避免封闭压抑。

深木饰面与皮质家具搭配,色调厚重稳重,塑造权威可靠的高管办公形象。

嵌入式筒灯 + 书架灯带组合,基础照明与局部氛围光结合,提升空间质感与工作舒适度。

独立办公室效果图

办公区、会客区与储物区互不干扰,符合高管办公 “处理事务 + 接待访客” 的双重需求。

一侧磨砂玻璃保证私密性,另一侧自然采光充足,避免封闭空间的压抑感。

木饰面与皮革家具搭配,色调温暖厚重,塑造权威、可靠的商务形象。

筒灯提供基础照明,台灯营造局部工作氛围,柔和光线提升舒适感与仪式感。

会议室效果图

桌椅呈规整围合式布局,预留充足通道,方便人员进出与交流,避免拥挤干扰。

一侧落地窗引入自然光,另一侧墙面安装屏幕,兼顾采光与会议展示需求。

浅灰木色与暖光搭配,视觉清爽沉稳,弱化压迫感,适配高效商务会议场景。

地毯吸音降噪,柔和灯光避免屏幕反光,提升会议舒适度与专注度。

休闲洽谈区效果图

沙发、单人椅围绕茶几形成完整会客圈层,视线交互自然,兼顾私密交谈与舒适动线。

大面积落地窗引入自然光,平衡室内深木饰面的压抑感,兼顾采光与隐私。

大理石地面、深木背景墙与布艺沙发搭配,冷暖互补,质感高级且温馨。

低饱和浅色系家具中和深色背景,点缀绿植提升生机,空间沉稳不压抑。

茶水间效果图

操作区、休闲区紧邻,满足备餐、简饮与短暂休憩需求,符合办公茶水间 “高效 + 放松” 定位。

台面预留宽敞操作动线,设备摆放集中,兼顾多人同时使用,避免拥挤混乱。

深木色柜体搭配大理石台面,色调沉稳且材质层次丰富,兼顾美观与耐用性。

暗藏灯带提供柔和照明,既提升氛围感又避免眩光,兼顾实用与舒适。

现代轻奢风咨询公司办公空间设计|专业商务氛围・高效功能布局

装修为什么选择 WayMorn 平台

装修一套房子,动辄投入十几万甚至上百万,这可能是普通家庭最大的一笔消费。然而,装修行业信息极不对称,很多业主直到入住后才发现各种问题。

装修不需要靠运气,需要靠制度。WayMorn 平台通过一套严谨的服务体系,以及“房屋检测+装修监理+商务监督”三重保障体系,帮您把控风险,让您装修无烦恼。

 

1. 独立的第三方人员

WayMorn平台首创的“房屋检测+装修监理+商务监督”三重保障体系,配备了签约房屋检测师、装修监理和商务监督员。这些人不属于装修公司,他们的职责就是代表您去监督装修公司。

 

2. 选择合格的装修公司

与WayMorn签约的装修公司有很多,每一家装修公司都是经过严格审核,并实地考察认证后才挑选出来的。在您准备装修时,平台提供三家及以上的装修公司供您选择,直到您满意为止。

如果您选择的是其他装修公司,WayMorn的“房屋检测+装修监理+商务监督”三重保障体系依然可以为您提供服务。

 

3. 商务审核帮您节省资金

不要只看装修总价,要看每一个施工项目的单价、面积、工艺描述和材料品牌规格,要看看有没有漏项缺项。

某些装修公司在初期报价时,经常会漏掉很多必不可少的项目,总价看起来很便宜。等您签了合同开始施工后,就会被要求追加资金,这时候您已经停不下来,只能增加预算。

我们的商务监督员会帮您审核装修报价,剔除不合理的收费项,确保每一分钱都花在实处;核查装修中每一个必不可少的项目,避免装修公司后期加价、追加装修项目等常见的问题。

 

4. 装修前检测房屋安全问题

我们的房屋检测师会在您装修设计前,检测房屋安全问题,告诉您哪些地方可以拆哪些地方不能拆,以及其他工程安全事项,在设计与施工前就有效规避风险,保障您和您的家人入住后的人身安全。

 

5. 装修材料的选择认证

装修一套房子会用到的材料种类很多品牌很多,各类品牌质量差异巨大,价格也差异巨大,仅仅看外表或者上网搜索某个品牌的装修材料情况,非专业人士很难辨别品牌真伪或质量好坏。

比如一块劣质瓷砖看起来很好,价格也低,但用一年后就会变色。而电线、水管、防水涂料这些埋在墙里的材料,一旦使用了劣质的,可能出现电路起火、水管爆裂等问题。而后期维修费用非常高,最关键的是新补的材料和原先的不可能完全一样,会影响全屋的整体美观。

因此,我们的专业人员会帮您把关,确保材料货真价实,从源头杜绝质量隐患。

 

6. 施工全过程节点管理

装修工艺标准不透明,会产生很多问题。很多施工员为了赶进度,不按标准工序操作。比如,同样的瓷砖,铺贴工艺不同,寿命完全不同,空鼓、开裂、墙面不平整等问题在交房时很难察觉,在入住一两年后问题才会出现,为时已晚,只能忍受。

我们的装修监理人将实施全过程节点管理,在每一道工序完成后(尤其是水电、防水),验收合格才进行下一道工序,保障施工质量。

 

7. 竣工后验收

装修工程全部结束后,并不意味着大功告成,可能还会有一些质量问题。

WayMorn 平台将会组织联合验收小组,对您的房屋从安全到质量进行全方位检查验收,发现问题,及时整改,直到全部合格。

 

装修是一件专业且复杂的大事,与其在开工后因为各种增项和质量问题去争吵,不如在开始前就选择一个专业的装修平台。

如果您正准备装修,欢迎联系 WayMorn,为您提供专业、透明、省心的全管家式装修服务,让您的装修结果真正符合预期。



×