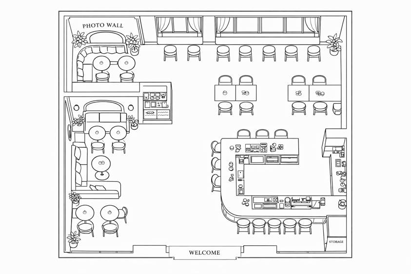
平面设计图(80平方米)
本款奶油风网红咖啡店空间设计,以「高流量、高转化、高复购」为核心,精准把握当下网红商业空间的
设计趋势,打造兼具颜值与运营效率的咖啡空间。整体布局遵循「打卡引流 - 体验留客 - 高效运营」
的商业逻辑,合理规划打卡区、客区、吧台与后勤区,最大化空间利用率。通过网红打卡墙、
中心视觉地台、氛围感灯光设计,强化门店社交属性,吸引自然流量与线上传播;通过优化服务动线、
多场景客区布局,提升顾客体验与翻台率;通过独立后勤区设计,保障门店高效运营,实现商业价值最大化。
本款奶油风网红咖啡店空间设计,以「高流量、高转化、高复购」为核心,精准把握当下网红商业空间的
设计趋势,打造兼具颜值与运营效率的咖啡空间。整体布局遵循「打卡引流 - 体验留客 - 高效运营」
的商业逻辑,合理规划打卡区、客区、吧台与后勤区,最大化空间利用率。通过网红打卡墙、
中心视觉地台、氛围感灯光设计,强化门店社交属性,吸引自然流量与线上传播;通过优化服务动线、
多场景客区布局,提升顾客体验与翻台率;通过独立后勤区设计,保障门店高效运营,实现商业价值最大化。
弧形吧台、散座区与休闲沙发区有序划分,服务动线与客用动线互不干扰,适配咖啡轻食店的高效运营需求。
桌椅间距充足,弧形吧台弱化边界感,避免拥挤,同时最大化利用窗边与角落空间,提升客座率。
米白护墙板 + 暖木色家具,搭配大量绿植与弧形元素,营造出法式复古 + 自然清新的松弛氛围。
暖光壁灯 + 筒灯分层照明,大理石台面与藤编材质混搭,兼顾颜值与触感,提升客人停留意愿。
L 型沙发 + 圆桌组合形成舒适会客区,靠窗单人椅区互不干扰,客流动线清晰,适配休闲社交场景。
转角大窗最大化引入自然光,双层窗帘兼顾采光与隐私,绿植布局辅助空气流通,提升空间舒适度。
米白护墙板 + 暖木色家具,搭配大量绿植与弧形元素,营造出法式清新 + 奶油风的松弛氛围。
“PHOTO WALL” 与绿植造景强化打卡属性,软包沙发 + 矮桌提升久坐舒适度,适合轻社交与拍照分享。
靠窗高脚座与前方方桌区有序划分,满足单人办公与多人小聚的多元需求,客流动线互不干扰。
大窗 + 浅色调墙面地面最大化反射自然光,双层窗帘兼顾采光与隐私,提升空间明亮度与舒适度。
米白护墙板 + 暖木色家具,搭配人字拼木地板,营造出清新柔和的法式奶油风氛围。
暖光壁灯 + 筒灯分层照明,大理石桌面与软包座椅兼顾质感与舒适,适合长时间停留与轻社交。
装修一套房子,动辄投入十几万甚至上百万,这可能是普通家庭最大的一笔消费。然而,装修行业信息极不对称,很多业主直到入住后才发现各种问题。
装修不需要靠运气,需要靠制度。WayMorn 平台通过一套严谨的服务体系,以及“房屋检测+装修监理+商务监督”三重保障体系,帮您把控风险,让您装修无烦恼。
1. 独立的第三方人员
WayMorn平台首创的“房屋检测+装修监理+商务监督”三重保障体系,配备了签约房屋检测师、装修监理和商务监督员。这些人不属于装修公司,他们的职责就是代表您去监督装修公司。
2. 选择合格的装修公司
与WayMorn签约的装修公司有很多,每一家装修公司都是经过严格审核,并实地考察认证后才挑选出来的。在您准备装修时,平台提供三家及以上的装修公司供您选择,直到您满意为止。
如果您选择的是其他装修公司,WayMorn的“房屋检测+装修监理+商务监督”三重保障体系依然可以为您提供服务。
3. 商务审核帮您节省资金
不要只看装修总价,要看每一个施工项目的单价、面积、工艺描述和材料品牌规格,要看看有没有漏项缺项。
某些装修公司在初期报价时,经常会漏掉很多必不可少的项目,总价看起来很便宜。等您签了合同开始施工后,就会被要求追加资金,这时候您已经停不下来,只能增加预算。
我们的商务监督员会帮您审核装修报价,剔除不合理的收费项,确保每一分钱都花在实处;核查装修中每一个必不可少的项目,避免装修公司后期加价、追加装修项目等常见的问题。
4. 装修前检测房屋安全问题
我们的房屋检测师会在您装修设计前,检测房屋安全问题,告诉您哪些地方可以拆哪些地方不能拆,以及其他工程安全事项,在设计与施工前就有效规避风险,保障您和您的家人入住后的人身安全。
5. 装修材料的选择认证
装修一套房子会用到的材料种类很多品牌很多,各类品牌质量差异巨大,价格也差异巨大,仅仅看外表或者上网搜索某个品牌的装修材料情况,非专业人士很难辨别品牌真伪或质量好坏。
比如一块劣质瓷砖看起来很好,价格也低,但用一年后就会变色。而电线、水管、防水涂料这些埋在墙里的材料,一旦使用了劣质的,可能出现电路起火、水管爆裂等问题。而后期维修费用非常高,最关键的是新补的材料和原先的不可能完全一样,会影响全屋的整体美观。
因此,我们的专业人员会帮您把关,确保材料货真价实,从源头杜绝质量隐患。
6. 施工全过程节点管理
装修工艺标准不透明,会产生很多问题。很多施工员为了赶进度,不按标准工序操作。比如,同样的瓷砖,铺贴工艺不同,寿命完全不同,空鼓、开裂、墙面不平整等问题在交房时很难察觉,在入住一两年后问题才会出现,为时已晚,只能忍受。
我们的装修监理人将实施全过程节点管理,在每一道工序完成后(尤其是水电、防水),验收合格才进行下一道工序,保障施工质量。
7. 竣工后验收
装修工程全部结束后,并不意味着大功告成,可能还会有一些质量问题。
WayMorn 平台将会组织联合验收小组,对您的房屋从安全到质量进行全方位检查验收,发现问题,及时整改,直到全部合格。
装修是一件专业且复杂的大事,与其在开工后因为各种增项和质量问题去争吵,不如在开始前就选择一个专业的装修平台。
如果您正准备装修,欢迎联系 WayMorn,为您提供专业、透明、省心的全管家式装修服务,让您的装修结果真正符合预期。