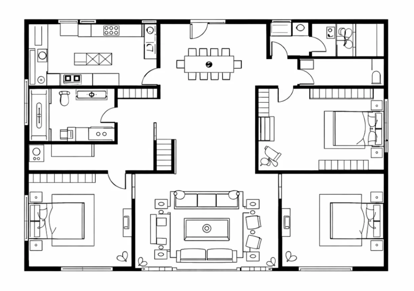
平面设计图(200平方米)

本款东南亚风格别墅设计,以「自然松弛、度假感拉满」为核心,融合东南亚经典

原木美学与热带自然元素,营造慵懒且富有治愈感的居住空间。整体布局方正通透,

合理划分起居区、餐厨区、卧室区与后勤动线,兼顾家庭居住体验与空间利用率。

通过客餐厅一体化串联全屋,增强空间通透感与视觉延伸感,同时优化动静分区,

保障居住私密性与舒适度。大面积公共空间结合独立套房卧室,满足多样化家庭生活需求。

客厅效果图

以中心茶几为核心,沙发呈 U 型环绕,形成围合式交流空间,符合家庭社交与待客需求。

大量使用实木雕刻、丝绸挂毯、铜质灯具等元素,与东南亚风格高度统一,避免了元素堆砌的杂乱感。

暖木色、浓郁色彩与精致雕刻,营造出华丽而神秘的异域氛围,极具辨识度。

从天花板的木梁、墙面的挂毯到地面的地毯,通过材质和色彩的递进,增强了空间的纵深感和视觉层次。

餐厅效果图

餐桌居中,两侧对称摆放座椅,形成规整的用餐动线,便于多人同时就餐。

实木家具、藤编灯具、石雕佛像等元素,与整体自然质朴的风格高度契合,避免了元素堆砌的杂乱感。

暖木色、自然材质与柔和灯光,营造出温馨静谧的用餐氛围,兼具仪式感与舒适感。

从墙面木雕、台面摆件到地面地毯,通过材质和色彩的递进,增强了空间的纵深感和视觉层次。

厨房效果图

采用 L型操作台,将冰箱、灶台、水槽三大核心功能区合理分布,形成流畅的烹饪动线,提升操作效率。

实木橱柜与东南亚风格的木雕装饰相得益彰,搭配暖调石材台面与瓷砖,整体风格协调统一。

开放式搁板展示陶瓷摆件,木雕烟机罩成为视觉焦点,不锈钢电器则增添了现代质感,让空间既有温度又不失精致。

暖木色与暖光照明营造出温馨的烹饪氛围,同时充足的储物空间兼顾了美观与实用。

主卧效果图

床居中摆放,两侧对称设置床头柜,形成规整的睡眠区,推拉门直接连通阳台,动线流畅,兼顾私密与休闲。

实木雕花床头、藤编地毯与暖调软装,与东南亚自然质朴的风格高度契合,避免杂乱感。

从床头木雕、床品到阳台家具,通过材质与色彩的递进,增强了空间纵深感与视觉层次。

     大尺寸推拉门将室外绿意引入室内,实现了室内外空间的自然过渡,提升了居住体验。

衣帽间效果图

采用 U 型对称布局,两侧衣柜分区明确,中央岛台兼顾收纳与展示,形成流畅的动线,提升整理效率。

实木雕花柜门、复古地毯与暖调灯光,与东南亚精致典雅的风格高度契合,避免杂乱感。

开放式挂衣区与封闭式储物格结合,灯光点缀下的雕花柜门成为视觉焦点,兼具质感与秩序感。

暖木色与柔和灯光营造出奢华而温馨的更衣氛围,同时充足的储物空间兼顾了美观与实用。

 

主卫效果图

通过半隔断将洗漱、沐浴、如厕区合理划分,动线流畅,干湿分离彻底,提升使用效率与安全性。

实木护墙板、藤编灯具与铜质五金件高度契合东南亚自然质朴的风格,避免了元素堆砌的杂乱感。

暖木色与柔和灯光营造出温馨治愈的沐浴氛围,兼具度假感与舒适感。

从墙面木饰、台面摆件到地面石材,通过材质与色彩的递进,增强了空间纵深感与视觉层次。

次卧效果图

床居中,两侧对称设置床头柜,左侧电视柜与右侧卫浴区动线流畅,推拉门直接连通阳台,兼顾私密与休闲。

实木雕花床头、藤编灯具与暖调软装,与东南亚自然质朴的风格高度契合,避免杂乱感。

暖木色、柔和灯光与窗外绿意,营造出温馨治愈的休憩氛围,兼具度假感与舒适感。

从床头木雕、床品到阳台家具,通过材质与色彩的递进,增强了空间纵深感与视觉层次。

次卫效果图

将浴缸、马桶、洗手台合理分布,动线流畅,干湿分离,兼顾私密与使用便利。

实木雕花、藤编灯具、石材台面等元素,与东南亚自然质朴的风格高度契合,避免杂乱感。

暖木色、柔和灯光与蜡烛,营造出温馨治愈的沐浴氛围,兼具仪式感与舒适感。

从墙面木饰、台面摆件到地面石材,通过材质与色彩的递进,增强了空间纵深感与视觉层次。

书房效果图

书桌居中,背靠墙面,左侧采光,右侧为书架,形成专注的工作区,动线流畅,兼顾阅读与收纳。

实木家具、复古地毯与暖调墙面,与东南亚自然质朴的风格高度契合,避免杂乱感。

从墙面装饰、台面摆件到地面地毯,通过材质与色彩的递进,增强了空间纵深感与视觉层次。

暖木色与柔和灯光营造出温馨静谧的办公氛围,兼具仪式感与舒适感。

洗衣房效果图

将洗衣区与洗漱区整合,叠放式洗衣机节省空间,动线流畅,兼顾洗衣与洗漱双重功能。

利用垂直空间叠放家电,通过定制橱柜与藤编篮实现分区收纳,让小空间也能保持整洁有序。

雕花隔断成为视觉焦点,不锈钢电器增添现代质感,空间既有温度又不失精致。

暖木色与暖光照明营造出温馨的使用氛围,充足的储物空间兼顾了美观与实用。

东南亚风奢墅户型|自然美学氛围・奢适功能布局

装修为什么选择 WayMorn 平台

装修一套房子,动辄投入十几万甚至上百万,这可能是普通家庭最大的一笔消费。然而,装修行业信息极不对称,很多业主直到入住后才发现各种问题。

装修不需要靠运气,需要靠制度。WayMorn 平台通过一套严谨的服务体系,以及“房屋检测+装修监理+商务监督”三重保障体系,帮您把控风险,让您装修无烦恼。

 

1. 独立的第三方人员

WayMorn平台首创的“房屋检测+装修监理+商务监督”三重保障体系,配备了签约房屋检测师、装修监理和商务监督员。这些人不属于装修公司,他们的职责就是代表您去监督装修公司。

 

2. 选择合格的装修公司

与WayMorn签约的装修公司有很多,每一家装修公司都是经过严格审核,并实地考察认证后才挑选出来的。在您准备装修时,平台提供三家及以上的装修公司供您选择,直到您满意为止。

如果您选择的是其他装修公司,WayMorn的“房屋检测+装修监理+商务监督”三重保障体系依然可以为您提供服务。

 

3. 商务审核帮您节省资金

不要只看装修总价,要看每一个施工项目的单价、面积、工艺描述和材料品牌规格,要看看有没有漏项缺项。

某些装修公司在初期报价时,经常会漏掉很多必不可少的项目,总价看起来很便宜。等您签了合同开始施工后,就会被要求追加资金,这时候您已经停不下来,只能增加预算。

我们的商务监督员会帮您审核装修报价,剔除不合理的收费项,确保每一分钱都花在实处;核查装修中每一个必不可少的项目,避免装修公司后期加价、追加装修项目等常见的问题。

 

4. 装修前检测房屋安全问题

我们的房屋检测师会在您装修设计前,检测房屋安全问题,告诉您哪些地方可以拆哪些地方不能拆,以及其他工程安全事项,在设计与施工前就有效规避风险,保障您和您的家人入住后的人身安全。

 

5. 装修材料的选择认证

装修一套房子会用到的材料种类很多品牌很多,各类品牌质量差异巨大,价格也差异巨大,仅仅看外表或者上网搜索某个品牌的装修材料情况,非专业人士很难辨别品牌真伪或质量好坏。

比如一块劣质瓷砖看起来很好,价格也低,但用一年后就会变色。而电线、水管、防水涂料这些埋在墙里的材料,一旦使用了劣质的,可能出现电路起火、水管爆裂等问题。而后期维修费用非常高,最关键的是新补的材料和原先的不可能完全一样,会影响全屋的整体美观。

因此,我们的专业人员会帮您把关,确保材料货真价实,从源头杜绝质量隐患。

 

6. 施工全过程节点管理

装修工艺标准不透明,会产生很多问题。很多施工员为了赶进度,不按标准工序操作。比如,同样的瓷砖,铺贴工艺不同,寿命完全不同,空鼓、开裂、墙面不平整等问题在交房时很难察觉,在入住一两年后问题才会出现,为时已晚,只能忍受。

我们的装修监理人将实施全过程节点管理,在每一道工序完成后(尤其是水电、防水),验收合格才进行下一道工序,保障施工质量。

 

7. 竣工后验收

装修工程全部结束后,并不意味着大功告成,可能还会有一些质量问题。

WayMorn 平台将会组织联合验收小组,对您的房屋从安全到质量进行全方位检查验收,发现问题,及时整改,直到全部合格。

 

装修是一件专业且复杂的大事,与其在开工后因为各种增项和质量问题去争吵,不如在开始前就选择一个专业的装修平台。

如果您正准备装修,欢迎联系 WayMorn,为您提供专业、透明、省心的全管家式装修服务,让您的装修结果真正符合预期。

×