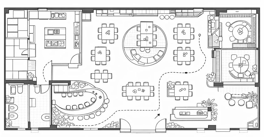
平面设计图(150平方米)
本款热带东南亚风餐厅设计,以「自然松弛、氛围沉浸」为核心,融合东南亚热带
森系美学与原生绿植造景,营造沉浸式海岛度假的用餐空间。整体布局清晰,合理划分
用餐区、吧台区、包间区、等候区、后厨及服务动线,兼顾顾客体验与运营效率。
通过中央绿植景观串联空间,增强互动性与视觉焦点,同时优化动线组织,提高翻台率。
大面积散座排布结合私密包间、休闲吧台,满足多样化就餐需求。
本款热带东南亚风餐厅设计,以「自然松弛、氛围沉浸」为核心,融合东南亚热带
森系美学与原生绿植造景,营造沉浸式海岛度假的用餐空间。整体布局清晰,合理划分
用餐区、吧台区、包间区、等候区、后厨及服务动线,兼顾顾客体验与运营效率。
通过中央绿植景观串联空间,增强互动性与视觉焦点,同时优化动线组织,提高翻台率。
大面积散座排布结合私密包间、休闲吧台,满足多样化就餐需求。
前台设备集中摆放,操作动线清晰,同时保留了绿植、佛像等装饰区,兼顾服务效率与氛围营造。
大面积落地窗引入自然光线,将室外绿意引入室内,弱化了空间边界,提升了空间开阔感。
木质前台、石质墙面与自然绿植、禅意佛像搭配,营造出静谧舒适的东南亚 / 禅意风格,传递放松感。
暖光竹编灯与蜡烛烘托温馨氛围,材质纹理(木、石、编织)丰富层次,提升了空间品质与温度。
对称式摆放家具与绿植,形成稳定视觉重心,既保障通行动线流畅,又满足休憩社交需求。
休闲座椅区与绿植景观区明确分隔,避免功能干扰,提升空间使用效率。
原木家具与大面积绿植呼应,浅灰瓷砖与木饰面形成冷暖对比,营造温润治愈的自然氛围。
墙面木饰面板、绿植花台、雕塑小品层层递进,丰富视觉层次,提升空间艺术感与品质感。
圆桌排布宽松合理,中心预留景观动线,既保障通行无阻,又方便服务与就座。
中央绿植景观区与周边用餐区、后方吧台明确分区,视觉焦点突出,整体功能层级清晰。
原木家具、藤编灯具与繁茂绿植融合,营造出热带森系氛围感,温馨且极具治愈感。
高低错落的绿植景观、暖光灯具、木质纹理叠加,打造出富有深度的视觉层次,质感拉满。
圆桌居中对称布局,适配 8 人围坐,动线通畅无阻碍,兼顾用餐与交流需求。
绿植与储物矮柜分别置于两侧,既柔化边界,又实现收纳与装饰的功能平衡。
藤编座椅、木雕屏风与木饰面墙面高度呼应,营造出温润质朴的东南亚禅意氛围。
暖光吊灯与背景灯带结合,弱化空间棱角,搭配自然绿植,提升了空间的治愈感与品质感。
清洗区、烹饪区、备餐台呈三角布局,厨师操作流程顺畅,减少往返,提升出餐效率。
冷藏存储、烹饪加工、备餐出餐区域独立划分,避免交叉干扰,符合后厨卫生规范。
全不锈钢设备与瓷砖地面,抗腐蚀、耐高温,便于日常清洁消毒,适配餐饮高使用强度。
中央岛台 + 多层储物架,最大化利用垂直与水平空间,食材与工具存取便捷,提升收纳效率。
清洗区、烹饪区、备餐台呈三角布局,厨师操作流程顺畅,减少往返,提升出餐效率。
冷藏存储、烹饪加工、备餐出餐区域独立划分,避免交叉干扰,符合后厨卫生规范。
全不锈钢设备与瓷砖地面,抗腐蚀、耐高温,便于日常清洁消毒,适配餐饮高使用强度。
中央岛台 + 多层储物架,最大化利用垂直与水平空间,食材与工具存取便捷,提升收纳效率。
装修一套房子,动辄投入十几万甚至上百万,这可能是普通家庭最大的一笔消费。然而,装修行业信息极不对称,很多业主直到入住后才发现各种问题。
装修不需要靠运气,需要靠制度。WayMorn 平台通过一套严谨的服务体系,以及“房屋检测+装修监理+商务监督”三重保障体系,帮您把控风险,让您装修无烦恼。
1. 独立的第三方人员
WayMorn平台首创的“房屋检测+装修监理+商务监督”三重保障体系,配备了签约房屋检测师、装修监理和商务监督员。这些人不属于装修公司,他们的职责就是代表您去监督装修公司。
2. 选择合格的装修公司
与WayMorn签约的装修公司有很多,每一家装修公司都是经过严格审核,并实地考察认证后才挑选出来的。在您准备装修时,平台提供三家及以上的装修公司供您选择,直到您满意为止。
如果您选择的是其他装修公司,WayMorn的“房屋检测+装修监理+商务监督”三重保障体系依然可以为您提供服务。
3. 商务审核帮您节省资金
不要只看装修总价,要看每一个施工项目的单价、面积、工艺描述和材料品牌规格,要看看有没有漏项缺项。
某些装修公司在初期报价时,经常会漏掉很多必不可少的项目,总价看起来很便宜。等您签了合同开始施工后,就会被要求追加资金,这时候您已经停不下来,只能增加预算。
我们的商务监督员会帮您审核装修报价,剔除不合理的收费项,确保每一分钱都花在实处;核查装修中每一个必不可少的项目,避免装修公司后期加价、追加装修项目等常见的问题。
4. 装修前检测房屋安全问题
我们的房屋检测师会在您装修设计前,检测房屋安全问题,告诉您哪些地方可以拆哪些地方不能拆,以及其他工程安全事项,在设计与施工前就有效规避风险,保障您和您的家人入住后的人身安全。
5. 装修材料的选择认证
装修一套房子会用到的材料种类很多品牌很多,各类品牌质量差异巨大,价格也差异巨大,仅仅看外表或者上网搜索某个品牌的装修材料情况,非专业人士很难辨别品牌真伪或质量好坏。
比如一块劣质瓷砖看起来很好,价格也低,但用一年后就会变色。而电线、水管、防水涂料这些埋在墙里的材料,一旦使用了劣质的,可能出现电路起火、水管爆裂等问题。而后期维修费用非常高,最关键的是新补的材料和原先的不可能完全一样,会影响全屋的整体美观。
因此,我们的专业人员会帮您把关,确保材料货真价实,从源头杜绝质量隐患。
6. 施工全过程节点管理
装修工艺标准不透明,会产生很多问题。很多施工员为了赶进度,不按标准工序操作。比如,同样的瓷砖,铺贴工艺不同,寿命完全不同,空鼓、开裂、墙面不平整等问题在交房时很难察觉,在入住一两年后问题才会出现,为时已晚,只能忍受。
我们的装修监理人将实施全过程节点管理,在每一道工序完成后(尤其是水电、防水),验收合格才进行下一道工序,保障施工质量。
7. 竣工后验收
装修工程全部结束后,并不意味着大功告成,可能还会有一些质量问题。
WayMorn 平台将会组织联合验收小组,对您的房屋从安全到质量进行全方位检查验收,发现问题,及时整改,直到全部合格。
装修是一件专业且复杂的大事,与其在开工后因为各种增项和质量问题去争吵,不如在开始前就选择一个专业的装修平台。
如果您正准备装修,欢迎联系 WayMorn,为您提供专业、透明、省心的全管家式装修服务,让您的装修结果真正符合预期。