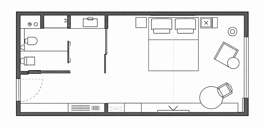
平面设计图(32平方米)

      本款现代东南亚融合风格酒店大床房设计,以“现代简约 + 东南亚自然度假风”为核心,

融合原木、亚麻、藤编与暖色调材质,打造一个放松、静谧且具有温度的居住空间。

整体布局通透舒展,让人在进入房间的瞬间就能感受到度假的松弛感。

玄关效果图

定制衣柜采用 “封闭储物 + 开放展示 + 分层收纳”,满足衣物、箱包、鞋履的实用需求,契合高端酒店入户动线。

藤编 + 实木材质透气防潮,浅色调墙面地面反射光线,有效缓解万象热带气候的闷热感。

实木藤编搭配老挝木雕装饰,将法式殖民温润感与东南亚本土元素自然结合,辨识度高。

暖光分层照明 + 低饱和色调,营造柔和雅致的入户氛围,线条简洁,符合中高端空间调性。

卧室效果图

床、电视、休闲区沿墙分布,动线流畅,阳台推拉门最大化引入自然采光与景观,符合酒店客房的居住与观景需求。

藤编 + 实木材质透气防潮,双层窗帘兼顾采光与隐私,适配热带气候的通风与隔热需求。

实木雕花床头 + 藤编元素,搭配老挝传统木雕装饰,将殖民复古与东南亚风情自然融合,辨识度高。

暖木色 + 米白低饱和色调,搭配柔和灯光,营造出静谧松弛的睡眠氛围。


卫生间效果图

玻璃隔断将淋浴区与洗漱、如厕区完全分隔,避免地面潮湿,提升使用安全与清洁效率。

天然石材墙面 + 开放式储物设计,透气防潮,适配热带气候,同时便于通风散味。

藤编、黄铜与天然石材搭配,呼应殖民复古与东南亚风情,暖调灯光营造温润质感。

带灯圆镜、壁龛收纳、绿植点缀,兼顾实用与氛围感,符合中高端酒店卫浴的品质要求。

现代东南亚融合风 · 私享静谧大床房 | 自然度假氛围 · 干湿分离卫浴

装修为什么选择 WayMorn 平台

装修一套房子,动辄投入十几万甚至上百万,这可能是普通家庭最大的一笔消费。然而,装修行业信息极不对称,很多业主直到入住后才发现各种问题。

装修不需要靠运气,需要靠制度。WayMorn 平台通过一套严谨的服务体系,以及“房屋检测+装修监理+商务监督”三重保障体系,帮您把控风险,让您装修无烦恼。

 

1. 独立的第三方人员

WayMorn平台首创的“房屋检测+装修监理+商务监督”三重保障体系,配备了签约房屋检测师、装修监理和商务监督员。这些人不属于装修公司,他们的职责就是代表您去监督装修公司。

 

2. 选择合格的装修公司

与WayMorn签约的装修公司有很多,每一家装修公司都是经过严格审核,并实地考察认证后才挑选出来的。在您准备装修时,平台提供三家及以上的装修公司供您选择,直到您满意为止。

如果您选择的是其他装修公司,WayMorn的“房屋检测+装修监理+商务监督”三重保障体系依然可以为您提供服务。

 

3. 商务审核帮您节省资金

不要只看装修总价,要看每一个施工项目的单价、面积、工艺描述和材料品牌规格,要看看有没有漏项缺项。

某些装修公司在初期报价时,经常会漏掉很多必不可少的项目,总价看起来很便宜。等您签了合同开始施工后,就会被要求追加资金,这时候您已经停不下来,只能增加预算。

我们的商务监督员会帮您审核装修报价,剔除不合理的收费项,确保每一分钱都花在实处;核查装修中每一个必不可少的项目,避免装修公司后期加价、追加装修项目等常见的问题。

 

4. 装修前检测房屋安全问题

我们的房屋检测师会在您装修设计前,检测房屋安全问题,告诉您哪些地方可以拆哪些地方不能拆,以及其他工程安全事项,在设计与施工前就有效规避风险,保障您和您的家人入住后的人身安全。

 

5. 装修材料的选择认证

装修一套房子会用到的材料种类很多品牌很多,各类品牌质量差异巨大,价格也差异巨大,仅仅看外表或者上网搜索某个品牌的装修材料情况,非专业人士很难辨别品牌真伪或质量好坏。

比如一块劣质瓷砖看起来很好,价格也低,但用一年后就会变色。而电线、水管、防水涂料这些埋在墙里的材料,一旦使用了劣质的,可能出现电路起火、水管爆裂等问题。而后期维修费用非常高,最关键的是新补的材料和原先的不可能完全一样,会影响全屋的整体美观。

因此,我们的专业人员会帮您把关,确保材料货真价实,从源头杜绝质量隐患。

 

6. 施工全过程节点管理

装修工艺标准不透明,会产生很多问题。很多施工员为了赶进度,不按标准工序操作。比如,同样的瓷砖,铺贴工艺不同,寿命完全不同,空鼓、开裂、墙面不平整等问题在交房时很难察觉,在入住一两年后问题才会出现,为时已晚,只能忍受。

我们的装修监理人将实施全过程节点管理,在每一道工序完成后(尤其是水电、防水),验收合格才进行下一道工序,保障施工质量。

 

7. 竣工后验收

装修工程全部结束后,并不意味着大功告成,可能还会有一些质量问题。

WayMorn 平台将会组织联合验收小组,对您的房屋从安全到质量进行全方位检查验收,发现问题,及时整改,直到全部合格。

 

装修是一件专业且复杂的大事,与其在开工后因为各种增项和质量问题去争吵,不如在开始前就选择一个专业的装修平台。

如果您正准备装修,欢迎联系 WayMorn,为您提供专业、透明、省心的全管家式装修服务,让您的装修结果真正符合预期。


×